Max Pasztory, Architekt DWB
Heidelberg, Plan
Projekte vor 2005
Gutachten
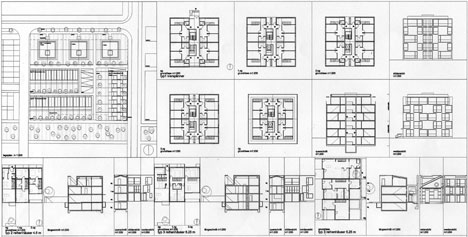
Neubauten von Reihen- und
Doppelhäusern, Heidelberg
Projekte vor 2005
sind in Bearbeitung